Products & Systems
Details & Documents
WarmSpan²
Contact
Login
Find an applicator
Search
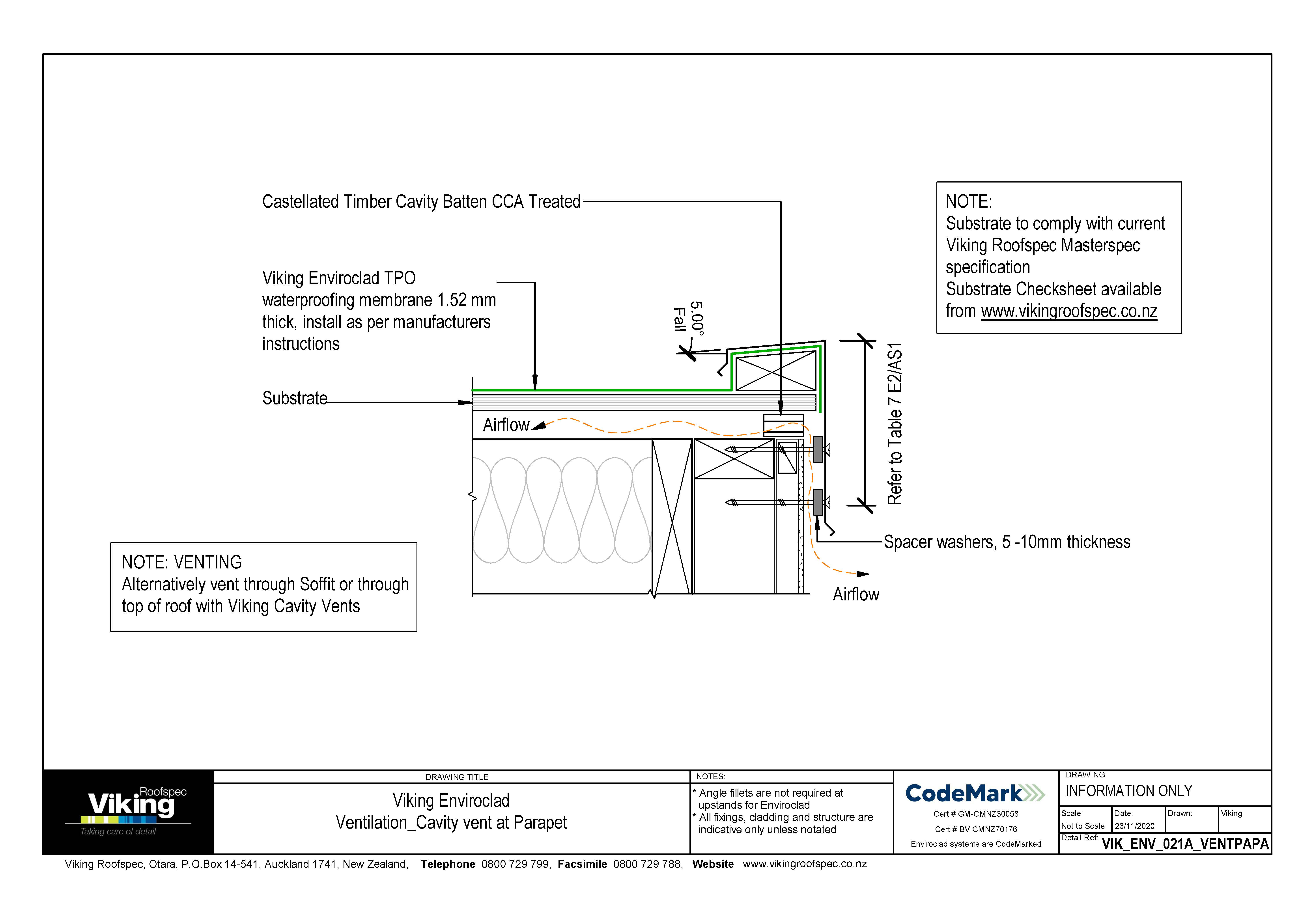
Ventilation Cavity Vent at Parapet 021a
rvt
jpg
pdf
dwg