Mercury FC
To visit the Mercury FC product page, click here
Mercury FC Details - Full Set
Multi-level Connection 04
Wall to Insulated Slab 05
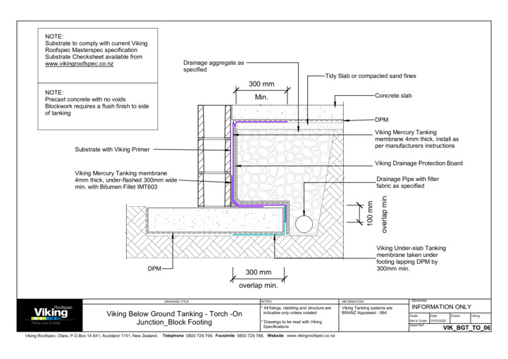
Polyblock Max.depth 1.5 07
Brick tie through Membrane 23
Termination Restricted Access 30
Pressure Bar Termination 31
Footpath to Tanked Wall 36
Mercury FC BRANZ Appraisal
Tanking Checklist - Builder
Tanking Checklist - Installer
Below-ground Tanking Methodology 1.2
Mercury FC Sample Warranty
EasyPaste - SES302/303 MSDS
Tanking Accessory Guide 2026